Howard Road, Walkley, S6
£400,000
- FANTASTIC INVESTMENT OPPORTUNITY
- Two four double bedroom houses
- Fully let for 23/24 and 24/25 academic years
- No chain
- Separate living room and kitchen
- Shower room
- Common porch/entrance for both houses
- Great location
- Well presented
- EPC Rating D - Potential C
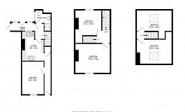
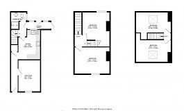
INVESTMENT OPPORTUNITY!!
Offered to the market with no onward chain are these two well presented, four double bedroom HMO properties. Fully let for 23/24 and 24/25 academic years with an income of £12,159 & £14,559 for 23/24 respectively and both let for £15,600 for 24/25 this is a fantastic buy for a student landlord. In both properties the accommodation on the ground floor comprises of an entrance hallway, separate living room, kitchen and shower room. Off the kitchen is a rear porch which is a joint entrance for both houses. To the first floor are two double bedrooms and stairs which lead to two further double bedrooms in the attic. These houses have been well maintained and would be great additions to a rental portfolio.
Walkley is a popular suburb to the North West of Sheffield City Centre. You're catered for on your doorstep with grocery stores such as ASDA, and within metres you'll find Gerry's Bakery and Coffee House, serving quality produce and great coffee. Local pubs include The Blind Monkey and The Blake Hotel, or try something a bit different at the Walkley Beer Co which is a local micro pub where you can sit down and try the beer. Bole Hills, with its magnificent views over Sheffield is just a short walk away.
Tenure - Freehold
Council Tax Band - A
EPC Rating - D
































